30 45 House Plan

30 45 House Plan - We have a fantastic collection of 1000+ 30x45 house plans and elevation designs. This striking 2 bhk single floor house plan in 1350 sq ft is well fitted into 30 x 45 ft. There 3 bedroom with 1 hall with 2 common bath rooms provided at the plan and about 14 columns took in this house construction plan. Covered porches on both the front and the back invite you outdoors.

30 45 House Plan Map Designs All Facing Home Vastu Compliant

30 45 House Plan Map Designs All Facing Home Vastu Compliant

By home plan 4u april 17, 2021. 4) 30 by 45 west face ground floor plan of the house. Choose a narrow lot house plan, with or without a garage, and from many popular architectural styles including modern, northwest, country, transitional and more.

This 5 Bedroom House Plan In 2800 Sq Ft Is Well Fitted Into 30 X 45 Ft.

Next to this spacious living room is an indian style kitchen which consists of a utility and storeroom. Featuring 2 bedroom, 1 bathroom,1 living room, 1 kitchen design in 30 by 45 corner house residential building. 30 ft wide house plans & floor plans.

With More Space Than Narrower Options, These Plans Allow For Versatile Layouts, Spacious Rooms, And Ample Natural Light.

Tim walz of minnesota, now vice president kamala harris's running mate. The plot area of this plan is 1,100 square feet and in the image we have provided the dimension of every area so that anyone can understand easily. Next to this spacious living room is an indian style kitchen with dining space attached to it.

Within This Collection, You'll Discover A Range Of Options, Including 2Bhk, 3Bhk, And 4Bhk Layouts, All Meticulously Crafted To Optimize Both Space And Functionality.

A lot of space has been given for parking in this 30 by 45 house plan. Check plan detail page for exact width. 30 x 45 house plan key features:

A Guide To The Career, Politics And Sudden Stardom Of Gov.

This plan consists of a spacious living room with a small verandah and lawn. This house plan has an internal staircase. The parking area of this plan is 16×14, where 2 cars can be parked together.

You Can Choose Our Readymade By Sqft House Plan For Retail, Institutional, Commercial, And Residential Properties.

The open floor plan places the great room, island kitchen, and dining area on the right side of the home. Advantages include enhanced interior flexibility, increased room for amenities, and possibly incorporating. Free shipping on all house plans!

This House Plan Consists Of The Following As Discussed.

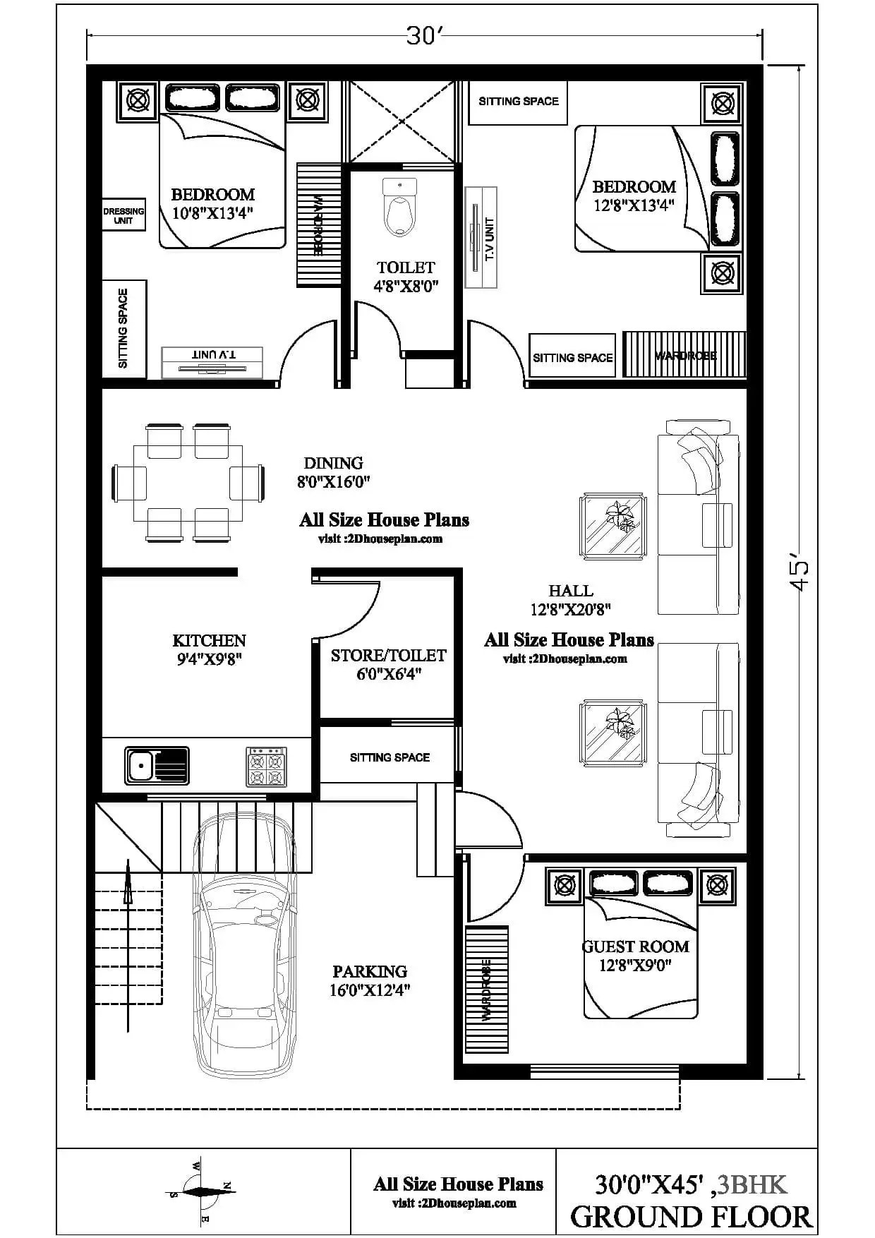
There are three bedrooms in this plan, as well as a big family hall and a separate worship area, all of which are equipped with their own washrooms. After quite a bit of research into the general likes and dislikes of people with respect to their preferences in a house plan, we have designed a 30 x 45 house plan. In fact, every 1350 square foot house plan that we deliver is designed by our experts with great care to give detailed information about the x front elevation and 30*45 floor plan of the whole space.

A Small Sit Out Or Guest Room With Size 9 Feet By 5 Feet 3 Inch Used.

This plan is featured with a porch that connects the spacious living room which is double height. This is a 3bhk 30×45 house plan. Next to the living room is the kitchen with attached utility space.

Design Your Customized Dream 30X45 House Plans And Elevation Designs According To The Latest Trends By Our 30X45 House Plans And Elevation Designs Service.

Browse our narrow lot house plans with a maximum width of 40 feet, including a garage/garages in most cases, if you have just acquired a building lot that needs a narrow house design. Here in this article, we will share a 30 by 45 feet house plan in 2bhk it has modern features and designs. 30×45 house plan north facing.

30 * 45 House Plan Is The Best 2Bhk House Plan Made By Our Expert Floor Planners And House Designers Team By Considering All Ventilations And Privacy.

This house is a 3bhk residential plan comprised with a modular kitchen, 3 bedroom, 3 bathroom and living space. Find wide range of 30*45 house design plan for 1350 sqft plot owners. October 1, 2023 by fhp.

Explore Our Thoughtfully Curated Collection Of House Plans Designed To Fit Seamlessly On A 30×45 Plot.

Here's a complete list of our 30 to 40 foot wide plans. 30×45 house plan south facing. It has two bedrooms with attached toilets.

In This 3 Bedroom House Plan The Porch Or Parking Lot From Start To Finish, Followed By The Family Hall.

Each one of these home plans can be customized to meet your needs. This plan consists of a spacious living room with an internal staircase next to it. We understand that your plot size is unique, and your.

The Kitchen Is Also Featured With Utility Space.

30X45 House Plan 5 Marla House Plan 1 CadReGen

30X45 House Plan 5 Marla House Plan 1 CadReGen

30x45 house plan east facing 30x45 house plan 1350 sq ft house plans

30x45 house plan east facing 30x45 house plan 1350 sq ft house plans

Copy of 3 bedroom house design with floor plan pdf 30x45 house plan 3bhk 3bhk house design

Copy of 3 bedroom house design with floor plan pdf 30x45 house plan 3bhk 3bhk house design

画像 30*45 house plan 2 bedroom 33895230*45 house plan 2 bedroom

画像 30*45 house plan 2 bedroom 33895230*45 house plan 2 bedroom

17+ 30 45 House Plan 3d North Facing, Amazing Inspiration!

17+ 30 45 House Plan 3d North Facing, Amazing Inspiration!

Living Hall, Family Living, Hall House, Family House Plans, Two Brothers, Floor Plans, House

Living Hall, Family Living, Hall House, Family House Plans, Two Brothers, Floor Plans, House

30x45 House Plan East Facing 30x45 House Plan 1350 Sq vrogue.co

30x45 House Plan East Facing 30x45 House Plan 1350 Sq vrogue.co

30 By 45 House Plan Best Bungalow Designs 1350 Sqft

30 By 45 House Plan Best Bungalow Designs 1350 Sqft

House Plan 25 x 45 House layout plans, House layouts, Metal building house plans

House Plan 25 x 45 House layout plans, House layouts, Metal building house plans

30 45 House Plan Map Designs All Facing Home Vastu Compliant

30 45 House Plan Map Designs All Facing Home Vastu Compliant

East Facing House Vastu Plan 30 X 45

East Facing House Vastu Plan 30 X 45

30 By 40 House Plan Top 4 Free 30x40 House Plan 2bhk 3bhk

30 By 40 House Plan Top 4 Free 30x40 House Plan 2bhk 3bhk

house plan images 30×45 ft

house plan images 30×45 ft

30 X 45 Ft 5 Bedroom House Plan In 2800 Sq Ft The House Design Hub

30 X 45 Ft 5 Bedroom House Plan In 2800 Sq Ft The House Design Hub

30 45 House Plan Map Designs All Facing Home Vastu Compliant

30 45 House Plan Map Designs All Facing Home Vastu Compliant